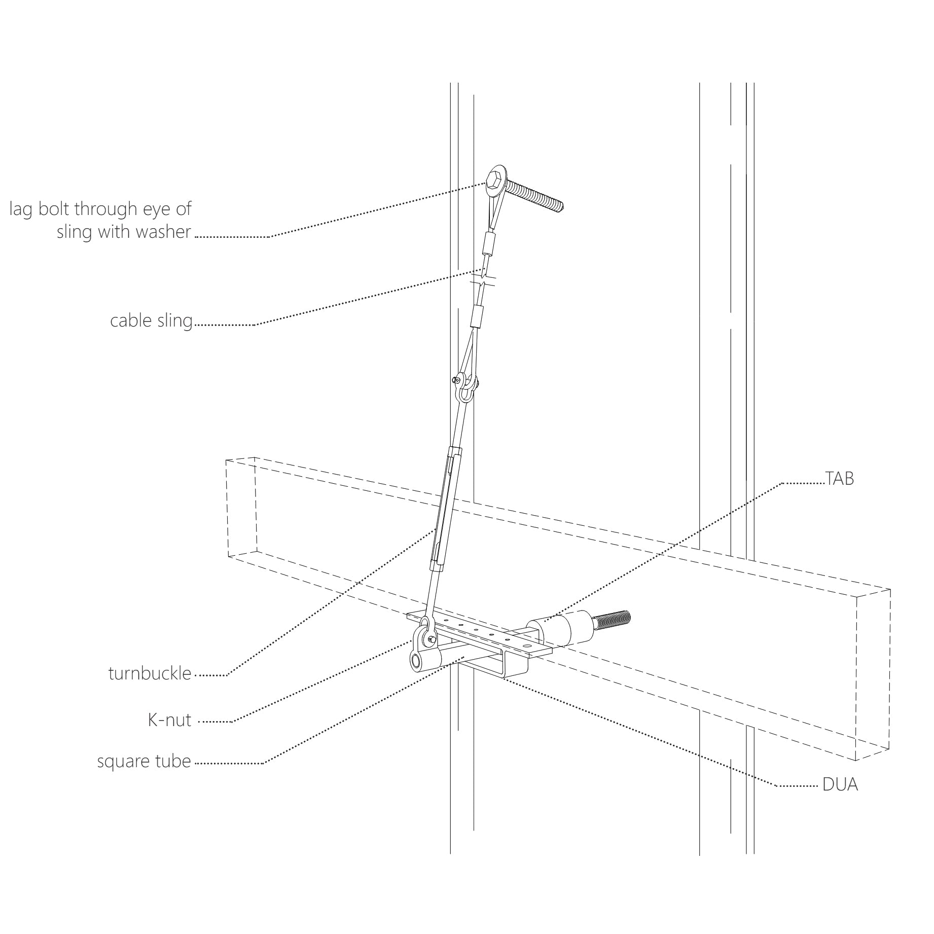
SL Suspension System
This is a five-piece kit that creates the TAB Suspension System, also know in our business, as a back-up. This assembly works together as one unit to ensure that the beam has maximum structural integrity for as long as possible, and is part of our standard connection.
The kit includes:
- 3/4" turnbuckle
- 3' suspension cable
- K Nut
- 1" x 8" galvanized lag screw
- 1" flat washer
These components are sold as a kit, because they are used together. The K Nut screws onto the end of a standard TAB and creates an attachment point for the turnbuckle. The turnbuckle connects the K Nut to the suspension cable. The suspension cable is attached to the tree using the galvanized lag screw and flat washer.
*After your purchase is complete, you will be provided with installation instructions. Please see the "order note" in your confirmation email to access these.
Check out this instructional video on how to install our SL suspension System:
























